房天下>昆山二手房>昆山二手房>花桥二手房>绿地21城A区别墅二手房

豪华精装 近地铁 南北通,采光好 3层小别墅送阁楼地下室车位

分享

微信扫一扫分享好友
更多分享>

收藏

下载房天下APP
楼盘动态及时知

基本信息
有无电梯
挂牌时间 2025-05-21
梯户比例 暂无数据
供暖方式 暂无数据
房屋结构 暂无数据
抵押信息 暂无数据
楼层高度 暂无数据
上次交易 暂无数据
业主自评
接电时间:09:00-22:00
房东直售,花桥优质房源,拎包入住

上海产权·花桥联排精致小边墅】146.7㎡四房三卫 阁楼地库 车位。送豪装家具!
上海产权别墅 0装修成本 功能型空间 边套采光优势 面积大小实用精致 拎包入住,精准锁定购房刚需、改善型家庭及资产配置客户!
【核心亮点】
✅ 上海红本产证!青浦白鹤镇绿地21城A区联排边套
✅ 稀缺4层别墅空间:地库30㎡ 地上3层 钢架阁楼10㎡
✅ 豪华双次装修 附赠全屋家具家电 即买即住
✅ 明厨明卫 三面采光 南北通透 阳光房 双阳台观景
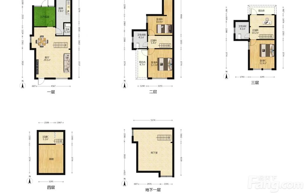
【户型解析】
▫️B1地库:独立储物间/影音室、棋牌室自由改造
▫️1F:阔绰客厅 明厨 卫浴 阳光房(内置洗衣区)
▫️2F:主卧套间(含书房 衣帽间) 西向观景阳台
▫️3F:次主卧套间 北向阳台 6米挑高阁楼(可改卧室/储物间)
✨ 实景呈现:全屋精装保养如新 远超普通二手房品质
【超值附赠】
‼️ 全屋定制柜体 高端家电(空调/洗衣机/厨卫设备)
‼️ 车位配套 花园边套景观优势
【业主诚售】
仅此一房!价格可议!欢迎买家直接联系我房东本人,预约看房!有意者私聊。
显示全部
房源图片
室内图
室内图
室内图
室内图
室内图
室内图
室内图
室内图
室内图
室内图
室内图
室内图
室内图
室内图
室内图
室内图
室内图
室内图
室内图
室内图
室内图
室内图
室内图
室内图
室内图
室内图
室内图
室内图
室内图
室内图
室内图
室内图
室内图
室内图
室内图
室内图
室内图
室内图
室内图
室内图
户型图
户型图
450
4室2厅3卫
户型
146.72平米
建筑面积
30671元/平米
单价
东南
进门朝向
3层
地上层数
暂无
装修程度
区      域
绿地21城A区别墅小区信息
参考均价27065元/平米
同比去年↓25.21%
环比上月↓7.75%
收藏
物业类型 别墅
物业费用2.8元/㎡·月
建筑类型联排
建筑年代2006年
绿 化 率65%
容 积 率0.7
人车分流
总楼栋数195
总 户 数522
小区图片
周边配套
免责声明:房源信息由网站用户提供,其真实性、合法性由信息提供者负责,最终以政府部门登记备案为准。本网站不声明或保证内容之正确性和可靠性,购买该房屋时,请谨慎核查。入学情况仅凭历史经验总结,在此不承诺升学事宜。请您在签订合同之前,切勿支付任何形式的费用,以免上当受骗。